
ブログ マンションリノベーション
一級建築士ブログ
注文住宅のようなマンションリノベーション
戸建(新築・リノベ)のイメージが強いゼンですが、マンションリノベーションもさせていただいています。
マンションは戸建と比べても資産価値が落ちにくい傾向があり、不動産の中では比較的流動性の高い資産です。
しかしその分、内装は規格化され画一的な味気ない住まいになりがちです。
ZENでは「注文住宅のようなマンションリノベーション」をテーマに様々なリノベーションを手がけてきました。
今回はその特徴をご紹介します。
木の温もりと暮らすマンションリノベーション
多くのマンションは管理規約で床の防音性能を一定基準以上にしなければならないという決まりがあります。通常無垢材のフローリングはこの防音基準を満たすことができません。ZENでは無垢フローリングの下に特殊な防音マットを施工して防音基準をクリアする設計にしています。無垢フローリングは建材にはない暖かさ、心地よさがあり、人に馴染む材料です。
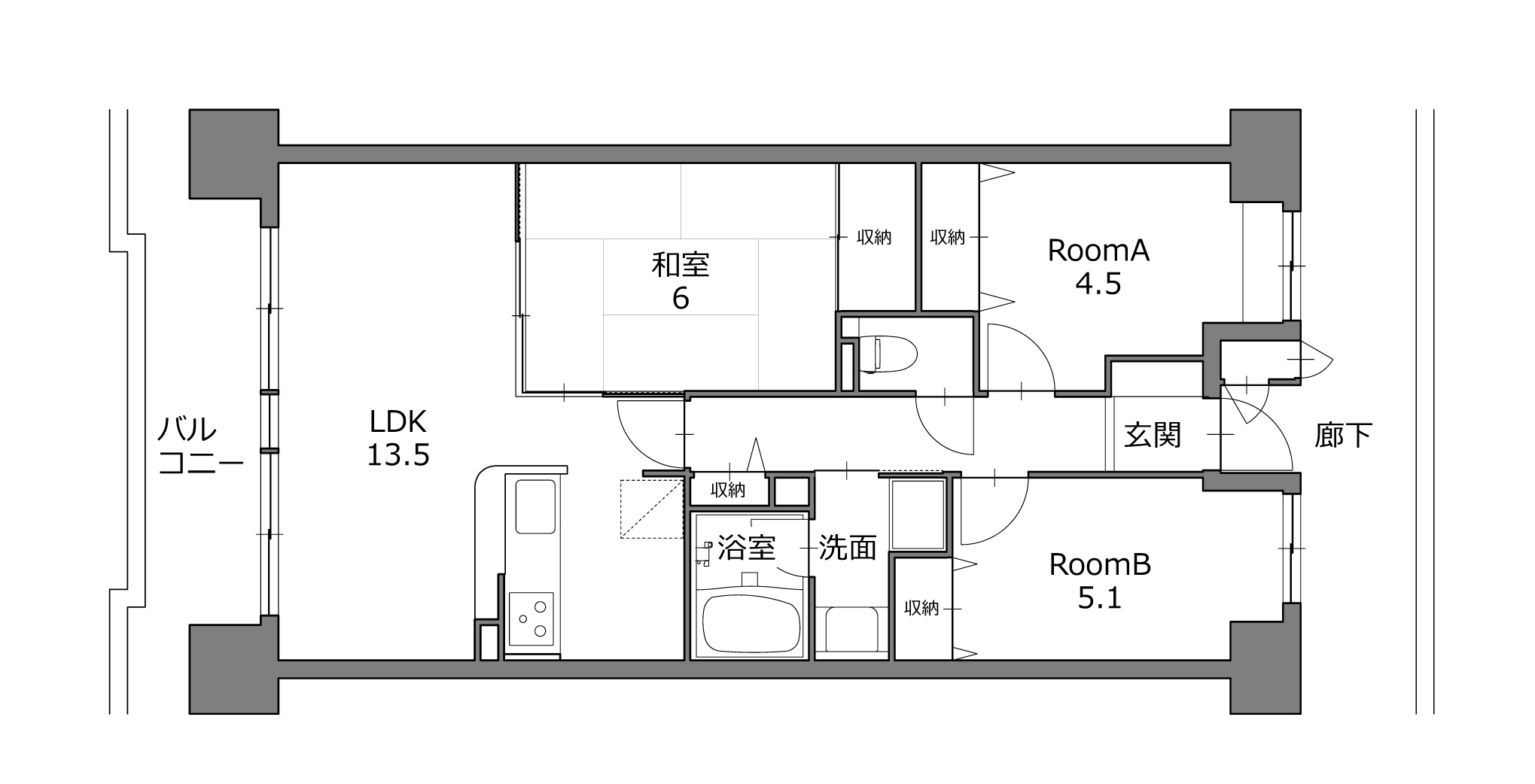
ライフスタイルに合わせた間取り
一般的なマンションでは住戸内の間取りはほとんど画一化され、どこのマンションでも同じようなものになっています。最も部屋面積が広くなる、最も無難な間取りです。ZENでは「注文住宅のようなマンションリノベーション」の名の通りお住まいになる方のライフスタイルに最も適したものになるように間取りを位置から考えて行きます。
造作ならではの設え
ライフスタイルに合わせた間取りを実現するために造作家具も合わせて設計します。その用途に最も適した使い方ができるようアレンジされ、室内空間を引き立てるようなスタイルで職人が一つひとつ手がけて行きます。
まとめ
このように資産価値や効率性を求めるマンションであっても、やはり人が住まい、暮らしていく空間です。人に馴染む素材でライフスタイルをより豊かにする提案を行っています。